ID CP2811338

For Rent I 5 rooms TownhouseI Pipera I Gated Community

ID CP2811338

298,000 € + 21% TVA

1,650 € + 21% TVA

Casă / Vilă cu 5 camere de vânzare
Central, Voluntari
138 mp
2024

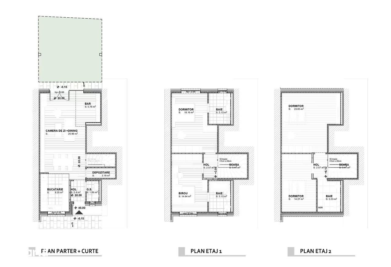
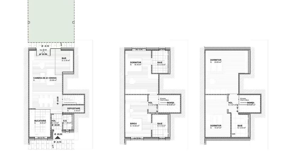
We offer for rent a Townhouse type villa with 5 rooms within a luxury Pipera Residential Project, built in a G+2M height regime, benefits from 2 parking spaces included, a terrace and a private garden intended for outdoor relaxation.

Efficiently partitioned, the unit has 5 rooms that were designed to provide comfort. With a useful area of 138 sqm, they are arranged as follows: the ground floor is composed of a group vestibule area, a 2 sqm bathroom, a special space intended for storage of 2.20 sqm, an 8.25 sqm open space kitchen and a spacious and bright 32 sqm living room with direct access to the terrace and garden area.

On the 1st floor, the partitioning is intended to provide privacy and utility, each of the two bedrooms benefiting from its own bathroom. The master bedroom has an area of 18 sqm and the secondary bedroom an area of 14.64 sqm.

The 2nd floor has a 2.57 sq m hallway area, a 5.53 sq m bathroom and 2 rooms with double skylights: a 14.27 sq m bedroom that can be arranged as an office and a 23.65 sq m room that you can arrange according to your needs: bedroom, children's playground, dressing area.

The project meets the qualities of a place called home, where comfort becomes a lifestyle.

Located in the northern area of the capital, on Str. Vasile Alecsandri in Pipera, the project benefits from the proximity of the best schools and kindergartens, both private and public: American School, British School, Olga Gudynn. Also nearby you can find shopping centers and supermarkets, such as Mega Image, Jolie Ville, Băneasa Shopping City, Pipera Plaza and LIDL. The area also offers multiple recreational and fitness options, such as Atlantis Club/World Class and the Zoo, Baneasa Forest, Regina Ana Park, as well as restaurants and cafes, including Strip Mall – Iancu Nicolae, as well as medical centers.

Away from the hustle and bustle and heavy traffic of the main areas, our complex provides quick and easy access to the exit from Bucharest via DN1, to Henri Coandă Airport and to the office poles in the area of Dimitrie Pompeiu Boulevard and Calea Floreasca. You will also have quick access to the A0 and A3 highways, the Bucharest ring road and neighboring cities.

We are happy to inform you that the residents are forming a vibrant community, contributing to the creation of a harmonious and pleasant living environment.

For a video of the house, more details orb a visit feel free to contact us!

Citește mai mult

  • Număr camere
    5
  • Dormitoare
    4
  • Număr bucătării
    1
  • Număr băi
    4
  • Geam la baie
    Da
  • Număr terase
    1
  • Număr locuri parcare
    2
  • Disponibilitate
    din 15 Mai
  • Tip casă
    Vilă
  • Suprafață utilă
    138 mp
  • Suprafață teren
    200 mp
  • Suprafață terasă
    35 mp
  • An construcție
    2024
  • Construcție nouă
    Da

Facilități

Aer condiționat
Apă
Aragaz
Bucătărie deschisă
Bucătărie mobilată
Bucătărie utilată
Cabină de duș
Cadă
Canalizare
CATV
Centrală proprie
Curent
Curte comună
Dressing
Frigider
Gaz
Grădină proprie
Hotă
Iluminat stradal
Încălzire prin pardoseală
Internet
Izolație interioară
Loc de joacă copii
Mașină de spălat rufe
Mașină de spălat vase
Mijloace de transport în comun
Mobilat complet
Mobilat lux
Parcare deschisă
Parchet
Străzi asfaltate
Telefon
TV
Vera Romanu - D'HOMES
Vera Romanu
Fondator I CEO I Consultant Imobiliar

+40) 725 858 441


Solicită chiar acum o vizionare
Telefon
Sună acum Solicită vizionare
Necesare:

Site-ul nu poate funcționa corect fără aceste cookie-uri. Vezi cookie-urile

Statistică:

Strângem statistici anonime despre voi, vizitatorii unici, pentru a vă îmbunătăți experiența dumneavoastră. Vezi cookie-urile

Marketing:

Pentru a ne promova mai eficient serviciile noastre, folosim cookies pentru a vă identifica și a vă oferi proprietăți și servicii personalizate. Vezi cookie-urile

Acest site folosește cookies, află detalii. Alege ce tipuri de cookies dorești să permitem: